Locale in affitto a Partinico, Via Pitrè
Partinico, Via Giuseppe PitrèNozioni di base
Descrizione
-
Descrizione:
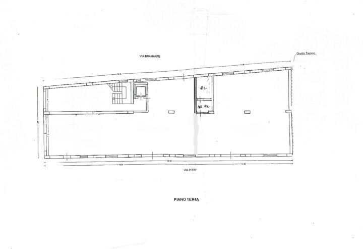
Proponiamo un locale commerciale in affitto a Partinico, situato tra Via Pitrè, Via Antonino Varvaro e Via Donato Bramante. La posizione è strategica, ben visibile e facilmente raggiungibile. È ideale per attività che necessitano di grande esposizione su strada e ampi spazi interni.
Superficie e caratteristiche interne
Il locale ha una superficie totale di 240 m². Gli spazi sono disposti in un unico grande vano, una soluzione pratica e flessibile che permette di organizzare l’ambiente in base alle esigenze della futura attività. È presente un bagno ristrutturato di recente. La struttura è stata sistemata da poco ed è pronta per essere definita con eventuali finiture specifiche.
Esposizione e visibilità
Il punto di forza di questo locale commerciale in affitto a Partinico è la visibilità. L’immobile dispone di quattro saracinesche su strada: due su Via Pitrè, una su Via Antonino Varvaro e una su Via Donato Bramante. Questa configurazione garantisce grande esposizione e un forte passaggio veicolare. È una soluzione perfetta per negozi, attività artigianali, showroom o servizi al pubblico.
Destinazioni possibili e prezzi
Il locale può essere affittato come magazzino al canone mensile di 1.400 euro.
Per attività commerciali o artigianali, il canone è di 1.700 euro mensili. Questa doppia possibilità rende l’immobile estremamente versatile e adatto a diverse tipologie di utilizzo.Piazzale opzionale
A circa 50 metri dal locale è disponibile un piazzale recintato di circa 900 m². Può essere affittato separatamente ed è ideale come deposito merci, area di carico e scarico o spazio di parcheggio.
Perché scegliere questo locale commerciale
Questo locale commerciale in affitto a Partinico offre spazio, visibilità e flessibilità. È una soluzione unica per chi cerca un punto strategico con grande potenziale per qualsiasi attività.
Vuoi valutare altre opportunità? Dai un’occhiata ad altri locali in affitto a Partinico.
Mostra tutta la descrizione
Oppure esplora l’intera lista degli immobili in affitto a Partinico, dove potrai trovare soluzioni per ogni budget e necessità.
Posizione
Dettagli dell'edificio
- Parcheggio: Su strada